WH系列圓弧齒圓柱蝸桿減速機
WH系列圓弧齒圓柱蝸桿減速機,包括WHT(通用型),WHX(蝸桿在蝸輪之下),WHS(蝸桿在蝸輪之上)和WHC(蝸桿在蝸輪之側)四個系列,主要用于冶金、礦山起重、運輸、化工、建筑等各種機器設備的減速傳動,工作環(huán)境溫度為0℃~45℃,高速軸可正反向運輸,蝸桿轉數≤1500r/min。
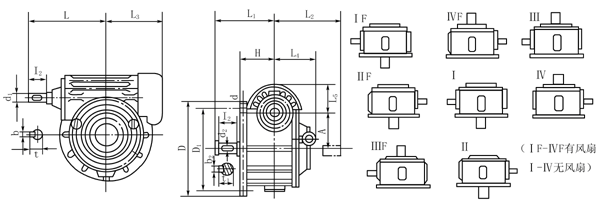
WHC圓弧齒圓柱蝸桿減速機是采用軸截面為圓弧形的圓柱蝸桿,蝸輪齒形與蝸桿相共軛的圓弧,由于蝸輪與蝸桿是凸凹嚙合,在嚙合區(qū)的絕大部分綜合曲率半徑大,因而降低了齒面應力,增加了齒面強度,提高 了承載能力,同時該齒形合理地減薄了蝸桿齒厚,增加了蝸輪齒根厚,因而蝸輪齒根抗彎強度增大,傳遞能力增大,還有接觸線與圓周速度夾角絕大部分在40°~90°之間,容易形成液體潤滑,齒面間摩擦系數小,所以效率高,溫度底。該產品符合JB2318-79標準,WHC減速機蝸桿可以在蝸輪之側的圓弧齒圓柱蝸桿減速機。適用于冶金、礦山、起重、運輸、化工、建筑等各種機械設備的減速傳動。本系列減速器輸入功率范圍在0.4~163KW之間;輸出扭矩在11~2600kgf·m之間,輸入軸轉數一般不大于1500轉/分;高速軸可正反兩向運轉;工作環(huán)境溫度為-40℃~45℃;當工作環(huán)境溫度低于0℃時,啟動前潤滑油_加溫到0℃以上。中心距:120、125、150、160、180、200、210、25O、280、300、320、360、400、420、450、500,速比:8、10、12.5、16、20、25、31.5、40、50九種。
|
型號 |
a |
L |
L1 |
L2 |
L3 |
L4 |
L5 |
H |
D |
D1 |
d |
d1 |
d2 |
b |
b1 |
t |
t1 |
I1 |
I2 |
重量 kg |
|
WHC120 |
120 |
245 |
257 |
257 |
218 |
140.5 |
117.5 |
140 |
330 |
290 |
M12 |
35 |
55 |
10 |
16 |
37.8 |
58.5 |
70 |
110 |
95 |
|
WHC125 |
125 |
235 |
237 |
237 |
225 |
140 |
125.5 |
140 |
330 |
290 |
M12 |
35 |
55 |
10 |
16 |
37.8 |
58.5 |
58 |
84 |
100 |
|
WHC150 |
150 |
294 |
274 |
274 |
255 |
161 |
136.5 |
160 |
400 |
360 |
M16 |
40 |
65 |
12 |
18 |
42.8 |
68.9 |
90 |
110 |
155 |
|
WHC160 |
160 |
290 |
292 |
292 |
265 |
161 |
140.5 |
165 |
410 |
370 |
M16 |
40 |
65 |
12 |
18 |
42.8 |
68.9 |
82 |
107 |
163 |
|
WHC180 |
180 |
375 |
298 |
298 |
309 |
181.5 |
148 |
185 |
465 |
425 |
M16 |
45 |
70 |
14 |
20 |
49 |
74.2 |
70 |
105 |
190 |
|
WHC200 |
200 |
360 |
347 |
347 |
365 |
207 |
168 |
200 |
490 |
450 |
M16 |
50 |
80 |
16 |
24 |
53.5 |
85 |
82 |
132 |
308 |
|
WHC210 |
210 |
390 |
377 |
377 |
370 |
212.5 |
174 |
210 |
540 |
490 |
M20 |
50 |
80 |
16 |
24 |
53.5 |
85 |
110 |
170 |
328 |
|
WHC250 |
250 |
430 |
372 |
372 |
430 |
211 |
193 |
220 |
610 |
560 |
M20 |
60 |
90 |
18 |
24 |
63.9 |
95 |
105 |
132 |
460 |
|
WHC280 |
280 |
485 |
432 |
432 |
485 |
235 |
213 |
240 |
690 |
630 |
M24 |
60 |
100 |
18 |
28 |
63.9 |
105.7 |
105 |
167 |
630 |
|
WHC300 |
300 |
540 |
467 |
467 |
520 |
238 |
215 |
270 |
750 |
690 |
M24 |
70 |
100 |
20 |
28 |
74.2 |
105.7 |
140 |
210 |
787 |
|
WHC320 |
320 |
525 |
457 |
457 |
525 |
258 |
235 |
260 |
770 |
710 |
M24 |
70 |
110 |
20 |
32 |
74.2 |
116.5 |
105 |
167 |
835 |
|
WHC360 |
360 |
565 |
472 |
472 |
565 |
273 |
250 |
280 |
890 |
810 |
M30 |
70 |
120 |
20 |
32 |
74.2 |
126.5 |
105 |
167 |
1045 |
|
WHC400 |
400 |
630 |
527 |
527 |
605 |
293 |
270 |
300 |
970 |
890 |
M30 |
80 |
130 |
24 |
36 |
85 |
137.2 |
130 |
202 |
1450 |
|
WHC420 |
420 |
680 |
552 |
552 |
665 |
301 |
267.5 |
325 |
1000 |
930 |
M30 |
90 |
140 |
24 |
36 |
97 |
147.2 |
170 |
240 |
1500 |
|
WHC450 |
450 |
680 |
562 |
562 |
670 |
321 |
298 |
340 |
1090 |
1000 |
M36 |
80 |
150 |
24 |
40 |
85 |
158.5 |
130 |
202 |
1855 |
|
WHC500 |
500 |
730 |
627 |
627 |
725 |
350 |
323 |
370 |
1190 |
1100 |
M36 |
90 |
170 |
24 |
40 |
95 |
178.5 |
130 |
242 |
2420 |


冀公網安備13092802000182 號